
Ingenieurbüro Ritzer, Pleinfeld

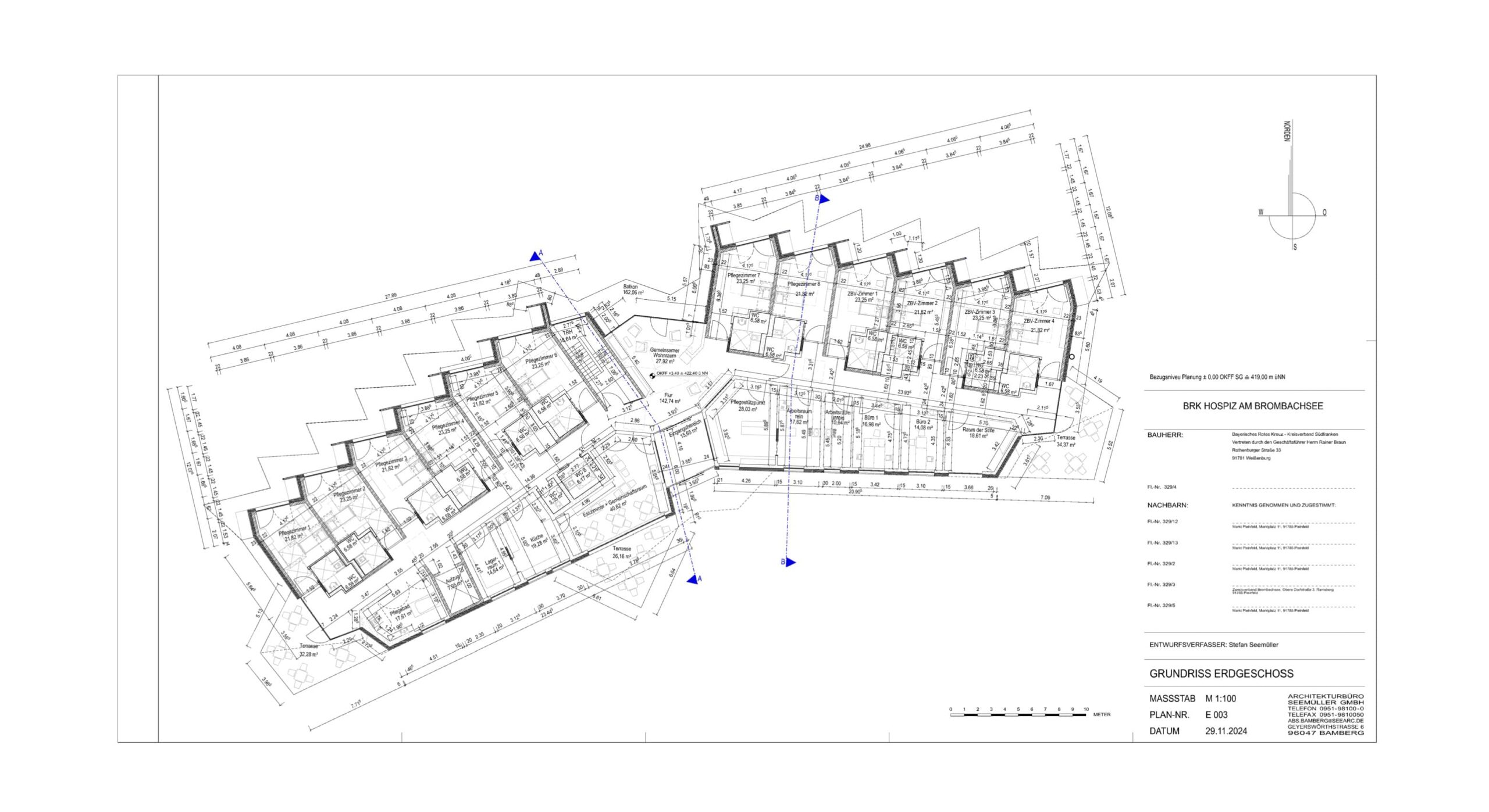
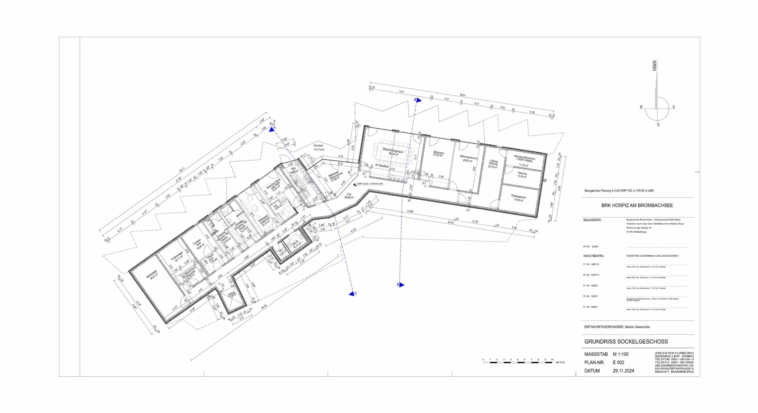
Durch eine Initiative der Landkreise Weißenburg-Gunzenhausen und Roth, der Hospizvereine beider Landkreise, der Stadt Schwabach und dem Bayerischen Roten Kreuz Südfranken, entsteht ein Hospiz direkt am Brombachsee.
Weitere Informationen (auch die Möglichkeit zu Spenden) finden Sie auf folgenden Seiten:
SPD Schwanstetten setzt Zeichen der Solidarität
Der Hospizverein Landkreis Roth bedankt sich herzlich beim SPD-Ortsverein Schwanstetten für die Initiative, beim diesjährigen Thomasmarkt (Sonntag, 07.12.2025) Spenden für den Bau eines stationären Hospizes zu sammeln. Der geplante Bau stellt eine wichtige Erweiterung der regionalen Hospiz- und Palliativversorgung dar, ist jedoch ohne zusätzliche finanzielle Unterstützung nicht vollständig zu realisieren.
Hintergrund ist, dass der Gesetzgeber sowohl beim Bau, als auch beim späteren Betrieb verlangt, dass ein Teil der anfallenden Kosten über Spenden finanziert werden muss. Dies soll verhindern, dass im Bereich der Sterbebegleitung kommerzielle Interessen eine Rolle spielen. Der Hospizverein, der zusammen mit dem Hospizverein Landkreis Weißenburg-Gunzenhausen und dem BRK-Südfranken das Hospiz betreiben wird, ist daher regelmäßig auf Spenden angewiesen, um dieses für die Region so wichtige Projekt zu ermöglichen.
Der SPD-Ortsverein möchte mit seiner Sammelaktion ein sichtbares Zeichen der Solidarität setzen.
Der Hospizverein bedankt sich für dieses Engagement und freut sich über jede weitere Unterstützung aus der Bevölkerung.
Auf dem Foto (von links):
Markus Rupprecht und Jobst-Bernd Krebs vom Ortsverein der SPD, Herr Günther Wittmann, stv. Koordinator des Hospiz- und Palliativversorgungsnetzwerks, Andrea Lehmann, Mitarbeiterin BRK Südfranken, Bürgermeister Robert Pfann und Frau Teresa Lipps vom Ortsverein der SPD


















